Eigentumswohnung in 8010 Graz, Jakomini, Kauf

  • Bild 1
  • Bild 2

**RARITÄT**Altbau-Ikone in Bestlage: Top-saniert, elegant ausgestattet - 2 Balkone**Beim Augartenpark & Nähe TU**Förderung**

Willkommen in einem Zuhause, das mehr ist als eine Wohnung - es ist eine seltene Kombination aus historischem Charme, modernem Luxus und einer Lage, die in Graz-Zentrum ihresgleichen sucht.

Diese Altbau-Rarität entsteht aktuell im Zuge einer umfassenden Generalsanierung und wird in wenigen Monaten zu den schönsten Wohnungen zählen, die man im Bezirk überhaupt finden kann.

Die ruhige Seitengasse, direkt neben dem Augartenpark, vermittelt eine besondere Wohnatmosphäre: urban, aber entspannt - zentral, aber geschützt.

Die Raumhöhe von ca. 3m verleiht jedem Bereich Großzügigkeit, Eleganz und eine Leichtigkeit, die nur in Gebäuden dieser Epoche zu finden ist.

Die originalen Altbau-Flügeltüren werden erhalten bzw. hochwertig erneuert und bilden das stilistische Herzstück der Wohnung. Ihre klassische Formensprache, ihre Höhe und Eleganz sorgen dafür, dass jeder Raum eine repräsentative Wirkung bekommt.

Hochwertige Parkett- bzw. Dielenböden vollenden die Luxusausstrahlung dieser Immobilie!



Highlights auf einen Blick:



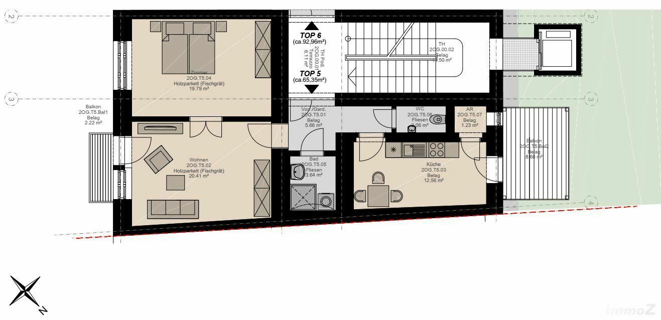
? Wohnfläche: 63,35 m² ? perfekt geschnitten, zeitlos elegant

? Luftige Raumhöhe von ca. 3 m

Ein Raumgefühl, das man nur im echten Altbau bekommt ? großzügig, repräsentativ, edel.

? Zwei Balkone


  • West-Balkon mit ca. 8,68 m² Nutzfläche ? Sonnenuntergänge inklusive

  • Wirtschaftsbalkon mit ca. 2,22 m² ? ideal für Pflanzen, Lager, Outdoor-Nützliches


? Zwei getrennt begehbare Zimmer


  • Zimmer 1: ca. 19,79 m²

  • Zimmer 2: ca. 20,41 m²

    Beide Räume mit idealer Größe, perfekter Möblierbarkeit und einzigartiger Altbauausstrahlung ? betont durch elegante Flügeltüren, die den Stil dieser Rarität harmonisch unterstreichen.


? Separate Wohnküche (ca. 12,56 m²)


  • Großzügiger Raum mit Platz für Esstisch

  • Zugang zum Abstellraum

  • Direkter Zugang zum Balkon ? perfekter Übergang zwischen Innen & Außen


? Edle Parkett- & Dielenböden

Feinste Materialien, die Altbauflair und Modernität perfekt verbinden.

? Bäder mit großflächigen, modernen Fliesen

Hochwertig, zeitlos, perfekt abgestimmt.

? Alle Leitungen neu

Elektrik, Sanitär, Heizung ? alles wird modernisiert.

Das bedeutet: Jahrzehntelange Sicherheit, Komfort und Wertbeständigkeit.

? Auf individuelle Wünsche kann Rücksicht genommen werden

Wer früh genug entscheidet, hat jetzt noch die Möglichkeit, Details nach eigenen Vorstellungen zu gestalten.

Eine Freiheit, die bei Altbauwohnungen fast nie möglich ist.



 Lage ? und zwar eine, die man nicht toppen kann

Ruhige Seitengasse unmittelbar beim Augartenpark

Perfekte Infrastruktur und urbane Lebensqualität

Technische UNI, Nahversorgung, Gastronomie, Straßenbahn, Radwege ? alles in Gehweite

Eine Lage, die in Graz dauerhaft zu den begehrtesten zählt

Wer hier wohnt, weiß: der Augarten ist nicht irgendein Park ? er ist ein Lebensgefühl.







Kaufpreis € 375.000,-- zzgl. 109.000,-- Förderung (40% nicht rückzahlbar unter Einhaltung der Förderrichtlinien)= € 446.000,-- 



Resümee

***Diese Wohnung ist eine seltene Altbau-Edition, die mit 3-Meter-Raumhöhe, Flügeltüren, edlen Parketten und zwei Balkonen eine Einzigartigkeit verkörpert, die man am Grazer Markt kaum mehr findet.

Die Kombination aus kompletter Generalsanierung, traumhafter Lage neben dem Augartenpark und perfekter Raumaufteilung macht sie zu einer Gelegenheit, die man nur einmal angeboten bekommt.***



STANDORT / LAGE

Standort: 8010 Graz, Jakomini
Lage: Ein Wohnort, der alles verbindet, was Graz lebenswert macht.
Die Wohnung befindet sich in einer der begehrtesten Lagen des Grazer Zentrums - nur wenige Schritte vom Augartenpark und in unmittelbarer Nähe zur Technischen Universität und die Innenstadt liegt quasi vor der Haustüre!
Die Umgebung verbindet ruhige, elegante Gründerzeit-Atmosphäre mit erstklassiger urbaner Infrastruktur.
Eine exklusive Wohnadresse für alle, die höchste Lebensqualität mit akademischer Nähe und grüner Erholung kombinieren möchten!
Lärm: absolute Ruhelage
Verkehr: Öffentliche Verkehrsmittel: Straßenbahn, Bus wenige Min. zu Fuß

€ 375.000
  • 63 m2
  • 3
  • 1
  • 0

ALLGEMEINE INFOS

Provision: 3,6 % inkl. 20% MwSt.
Baujahr: 1911
Modernisierung: 2026
Grundstück: TEILERSCHLOSSEN
Stockwerk/Etage: 1 von 5

FLÄCHEN

Wohnfläche: 63 m2
Balkon/Terrasse: 9 m2

RÄUME

Zimmer: 3
Badezimmer: 1
Separates WC: 1
Balkone: 2

AUSSTATTUNG

Böden: Parkett
Küche: offen
Badezimmer: Dusche
Heizung: Fernwärme
Fahrstuhl: ja

ENERGIE

Heizwärmebedarf: 45 kWh/(m²a)

Immobilie teilen



Ihr Ansprechpartner


Steindorff Immobilien GmbH

Telefon: +43 316 225 138-0
E-Mail: office@steindorff.at

Interessiert?